ファミリー・ホスピス南田中ハウス
物件No:南田中131202-004
物件外観
建物外観
クリニック入口
物件概要
老人ホームに併設された診療所の入居募集です。
環八すぐ横、大型スーパー徒歩3分!
建物前面道路が生活道路の為人通りが多く視認性が高い立地となります。
敷地面積:423.98坪
建築面積:184.36坪
竣工予定:2025年
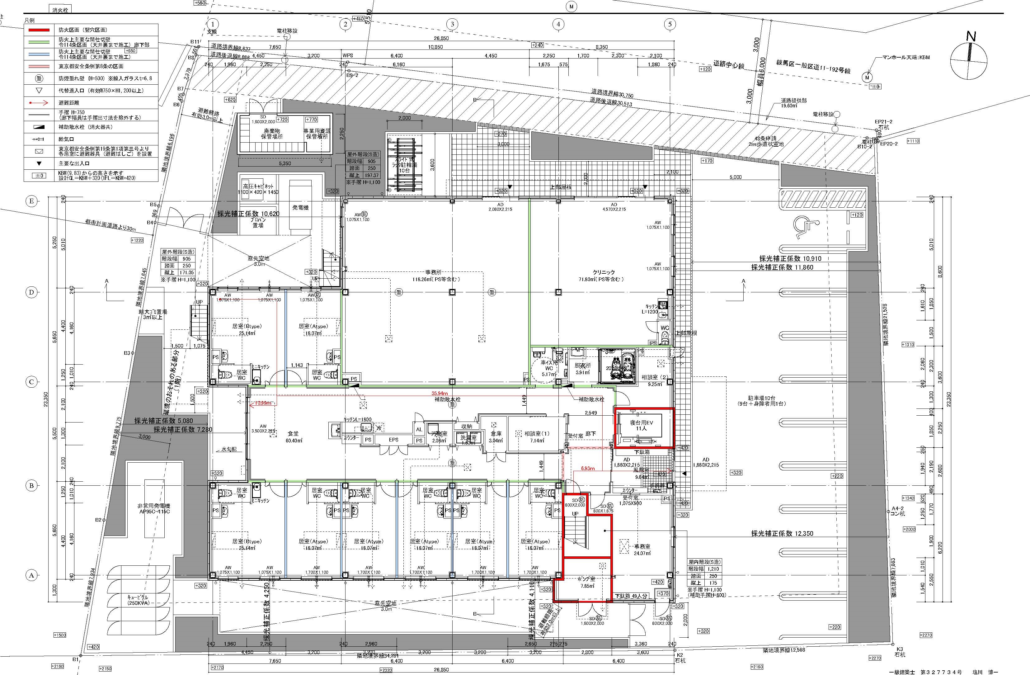
クリニック:1区画、調剤薬局:1区画、居室:34戸
| 物件形態 | 老人ホーム+診療所+調剤薬局 |
|---|---|
| 診療科目 | 内科、耳鼻科 |
| 所在地 | 東京都練馬区南田中二丁目18番 |
| 交通アクセス | 西武池袋線「練馬高野台駅」徒歩17分 |
| 建物面積 | クリニック:21.72坪(71.81㎡) |
| 賃料 | 月額500,000円 |
| 諸条件 | 管理費35,000円/月 敷金12ヶ月 契約期間10年・更新料なし |
| 建物構造 | 鉄骨コンクリート3階建 |
| 築年数 | 新築 |
| 階数 | 1階/3階 |
| 駐車場 | 1台 |
| その他 | - |
物件1階平面図
物件立面図









